楼盘名:西堤国际98平米
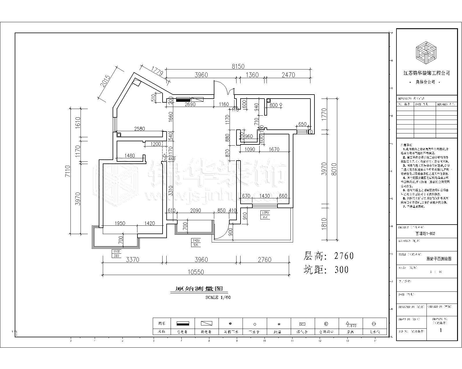
西堤国际98平米原始结构图:

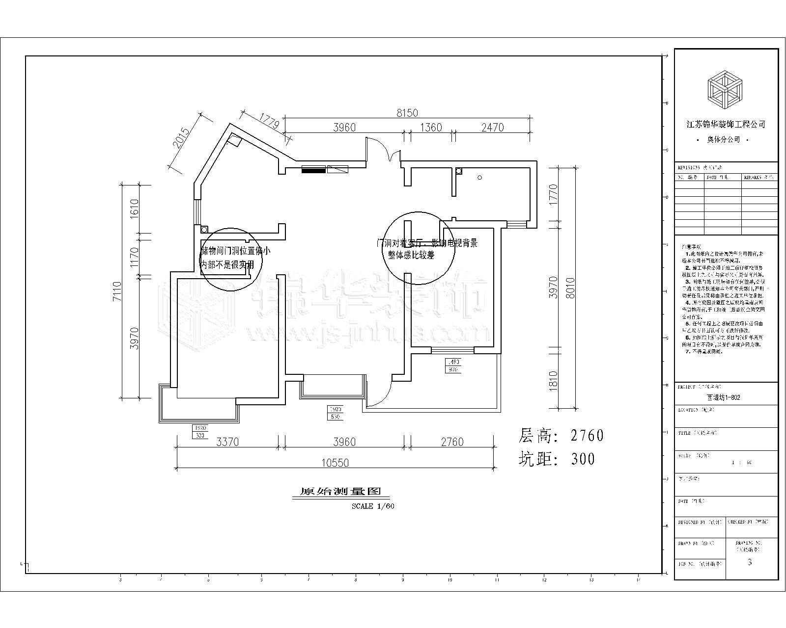
西堤国际98平米原始结构分析:
解析说明:
户型分析:本案是位于河西西堤国际,建筑面积98平米。属于2房2厅户型。业主准备把这套房子作为婚房来进行设计,设计风格定位为现代简约风格。
原户型的不足及后期修改:
1、 次卧室的门洞对着客厅,让客厅背景墙显得比较小气。建议把次卧室门洞做成装饰柜的效果,与电视背景墙形成一个整体。使得客厅更大气。
2、 主卧室衣帽间门洞方向开的不利用内部结构的布置,把门洞重新调整以后,使得内部结构的划分更有条理。
3、 次卧室房间偏小,为了考虑书房与卧室合二为一,考虑利用地台来把空间层次进行变化,使得房间显得错落有致,把书房和次卧都能合理的融入这个空间。
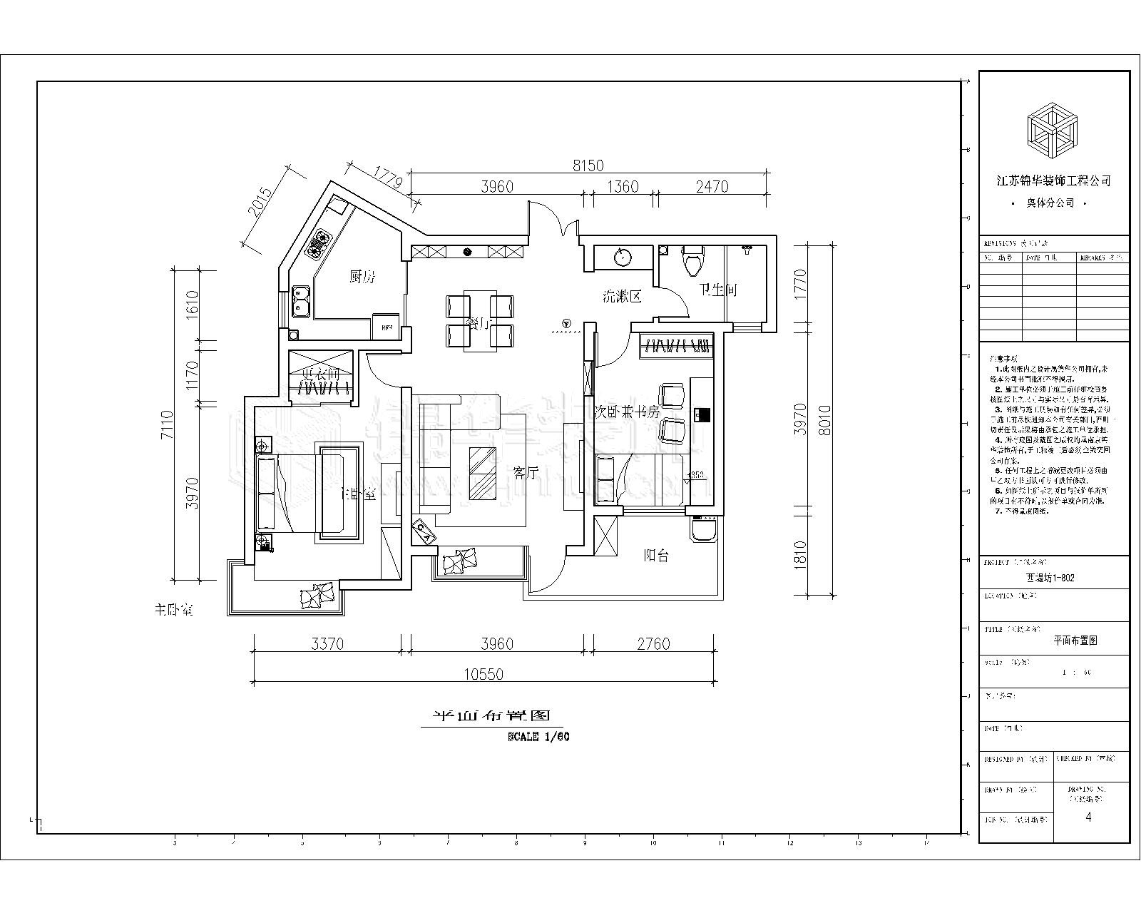
西堤国际98平米平面布置图:

西堤国际98平米平面布置分析图:

西堤国际98平米实景参考图:
参考图↓

想了解更多西堤国际户型资料么?
锦华装饰准备了西堤国际各户型全套设计方案、工程量报价、参考效果图、主材搭配方案.欢迎您和网络客服取得联系,预约来店面详细沟通.锦华装饰,设计专家!.
江苏家装示范品牌
代表地区优秀设计声音
集28年工程管理经验之大成
省时、省力更省心
| 走进锦华 | 设计团队 | 作品列表 | 户型解析 | 装修百科 |
关注锦华公众号
|
浏览手机官网 |
全国热线 025 86550815 |
||||||||||
| 新闻列表 | 锦华文化 | 堂杰国际设计 | 1865旗舰店 | 极简 | 中古 | 秦淮金茂府 | 常见问题 | ||||||||||
| 全国分公司 | 锦华招聘 | 河西旗舰店 | 鼓北旗舰店 | 法式 | |||||||||||||
| 锦华简介 | 联系我们 | 城东旗舰店 | 江宁旗舰店 | 欧式古典 | 北欧 | 中交锦方 | |||||||||||
| 资质荣誉 | 法律声明 | 江北旗舰店 | 江浦店 | 美式田园 | 新古典 | 溧水玖宸府 | |||||||||||