设计师:伏开元(江宁旗舰店 主任设计师)
案例说明
如果说服装可以量身定做,那房子也可以。我喜欢让客户参与设计,和他们慢慢磨合,因为这是他们的家。喜欢不同的业主带来不同的灵感,希望自己的设计就像演绎心情故事一样带着它的主人的痕迹…原始结构图↓
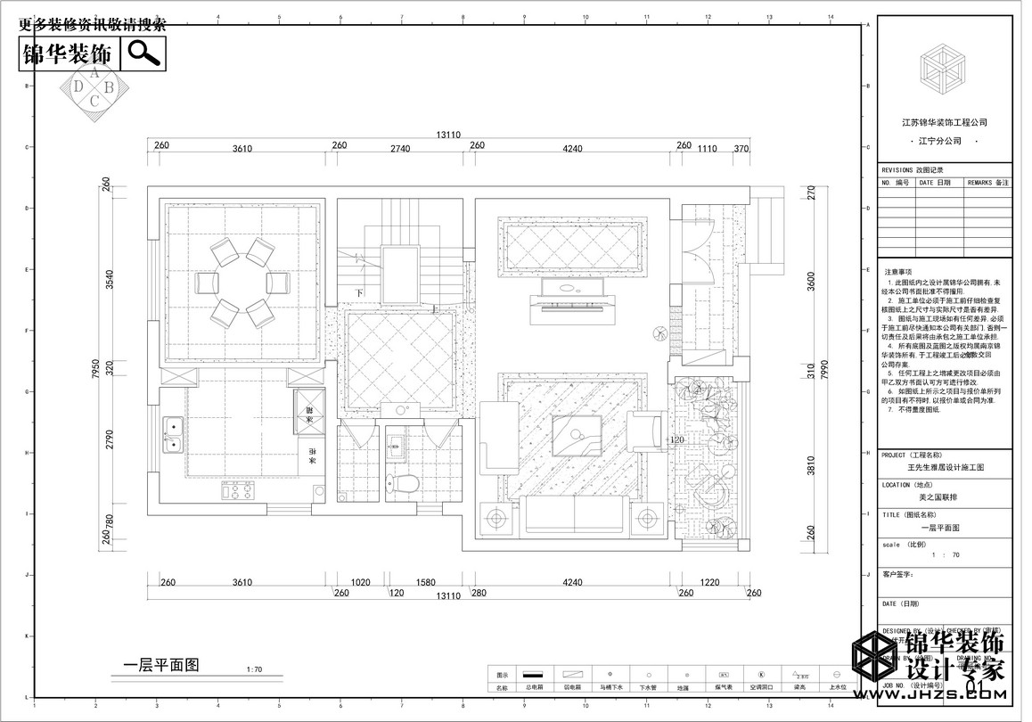
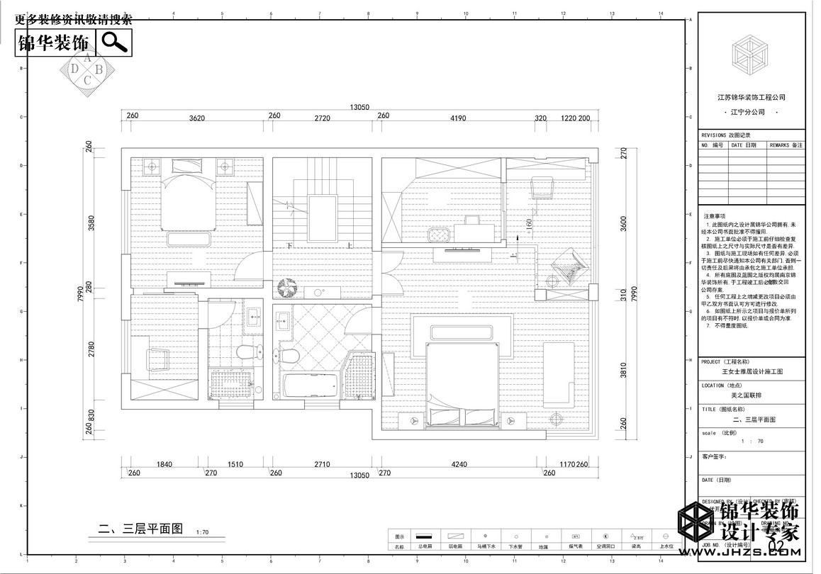
平面布置图↓
客户效果图↓
客户效果图↓
客户效果图↓
客户效果图↓
想了解更多保利香槟国际户型资料么?
锦华装饰准备了保利香槟国际各户型全套设计方案、工程量报价、参考效果图、主材搭配方案.欢迎您和网络客服取得联系,预约来店面详细沟通.锦华装饰,设计专家!.
江苏家装示范品牌
代表地区优秀设计声音
集28年工程管理经验之大成
省时、省力更省心
| 走进锦华 | 设计团队 | 作品列表 | 户型解析 | 装修百科 |
关注锦华公众号
|
浏览手机官网 |
全国热线 025 86550815 |
||||||||||
| 新闻列表 | 锦华文化 | 堂杰国际设计 | 1865旗舰店 | 极简 | 中古 | 秦淮金茂府 | 常见问题 | ||||||||||
| 全国分公司 | 锦华招聘 | 河西旗舰店 | 鼓北旗舰店 | 法式 | |||||||||||||
| 锦华简介 | 联系我们 | 城东旗舰店 | 江宁旗舰店 | 欧式古典 | 北欧 | 中交锦方 | |||||||||||
| 资质荣誉 | 法律声明 | 江北旗舰店 | 江浦店 | 美式田园 | 新古典 | 溧水玖宸府 | |||||||||||