设计师:张红丽(城东旗舰店 高级设计师)
户型详情:中南山锦花城108平米 新中式风格
案例说明
现代中式风格,也被称作新中式风格。现代中式风格设计,既是中国传统风格文化与现代时尚元素的融合与碰撞,又是在中国当代文化理解基础上的现代设计。此案例就采用新中式风格,将中式的传统元素与现代时尚元素巧妙结合,以达到业主想要的效果。
原始结构图↓
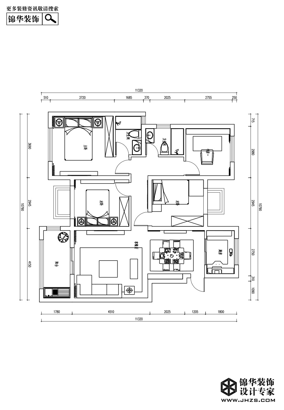
平面布置图↓
鸟瞰图↓
俯视图↓
客户效果图↓
客户效果图↓
客户效果图↓
客户效果图↓
客户效果图↓
客户效果图↓
客户效果图↓
客户效果图↓
想了解更多中南山锦花城户型资料么?
锦华装饰准备了中南山锦花城各户型全套设计方案、工程量报价、参考效果图、主材搭配方案.欢迎您和网络客服取得联系,预约来店面详细沟通.锦华装饰,设计专家!.
江苏家装示范品牌
代表地区优秀设计声音
集28年工程管理经验之大成
省时、省力更省心
| 走进锦华 | 设计团队 | 作品列表 | 户型解析 | 装修百科 |
关注锦华公众号
|
浏览手机官网 |
全国热线 025 86550815 |
||||||||||
| 新闻列表 | 锦华文化 | 堂杰国际设计 | 1865旗舰店 | 极简 | 中古 | 秦淮金茂府 | 常见问题 | ||||||||||
| 全国分公司 | 锦华招聘 | 河西旗舰店 | 鼓北旗舰店 | 法式 | |||||||||||||
| 锦华简介 | 联系我们 | 城东旗舰店 | 江宁旗舰店 | 欧式古典 | 北欧 | 中交锦方 | |||||||||||
| 资质荣誉 | 法律声明 | 江北旗舰店 | 江浦店 | 美式田园 | 新古典 | 溧水玖宸府 | |||||||||||